NOWAK ARCHITECTURE

NEWS

Project architect, providing consulting services to local New Mexico architect for a new branch banking office.

 

The building consists of approximately 5,500 SF of interior space containing a lobby, 3 offices, a coffee area for customers, a lounge for employees, and typical support spaces such as a teller area, a work room, a vault, etc.

 

There is an exterior courtyard that can be used for informal gatherings such as lunch, coffee breaks, or for formal after-hours events.

 

 

 

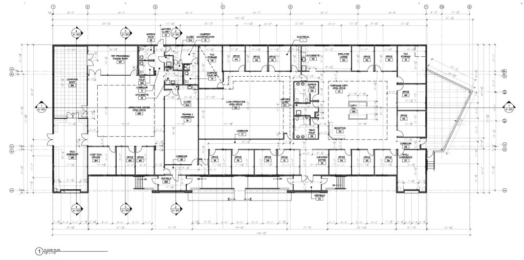
BANK OPERATIONS CENTER

PROJECT INFO

Client: Non-disclosed for security purposes

As a consultant to ASA Architects

Location: New Mexico

Completion Date: 2007

Project Size: 14,150 SF

<

This site built by Michael S. Nowak. AIA      Copyright  © 2017