NOWAK ARCHITECTURE

NEWS

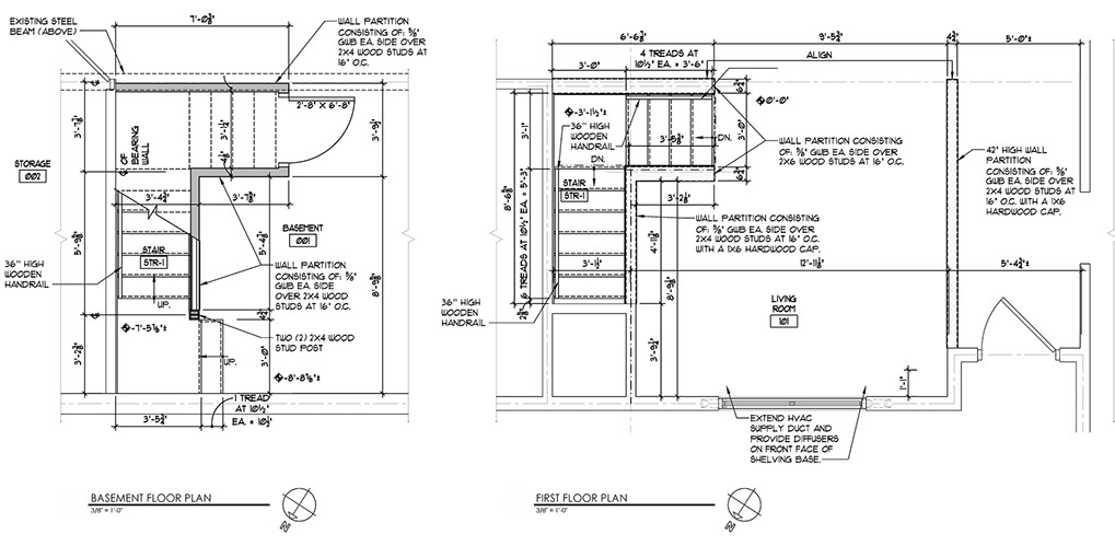
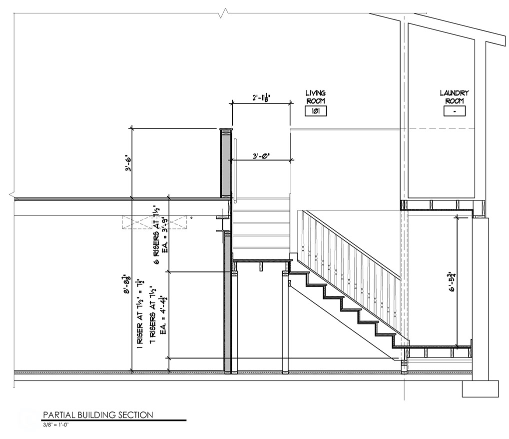
The owners sought a better functioning stair to their basement, which was used heavily for a variety of hobbies and work.  The existing stair was built with the house, and it was narrow and steep.  The solution was to design a more gentle rise and run of stair to improve the ability to move objects between floors.  Careful consideration of the headroom and existing floor framing was required, as existing ceiling height was limited in the basement.

The Blood Residence

PROJECT INFO

Client: Frank Fornari

Category: Residential Renovation

Completion Date: 2011

Location: Clymer, PA

Project Size: 100 SF

<

This site built by Michael S. Nowak. AIA      Copyright  © 2017