NOWAK ARCHITECTURE

NEWS

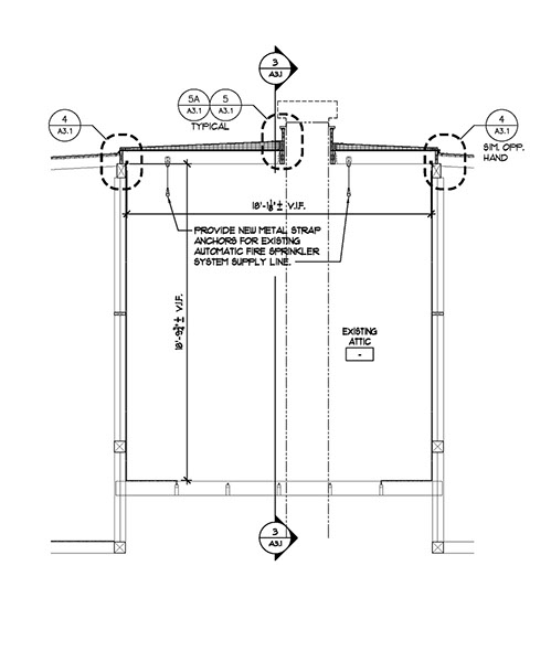
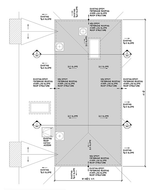
The work consisted of designing new structural roof framing to replace a portion of the existing roof, producing construction documents for competitive bidding, providing assistance during bid procurement as well as construction administration services during the construction phase of the project.

 

The project can be described as a low-slope roof structure replacement and new roof membrane installation.  Based upon the owner’s engineering consultant, and a site inspection by myself, it was clear the existing roof framing needed replacement.  In addition to the new roof framing, a new roof membrane was installed over a substrate of structural sheathing and insulation.  The new roof was sloped in order to achieve the adequate drainage.

HORACE MANN ELEMENTARY SCHOOL ROOF REPLACEMENT

PROJECT INFO

Client: Indiana Area School District

Category: K-12 Education

Completion Date: 2011

Location: Indiana, PA

Project Size: 750 SF

<

This site built by Michael S. Nowak. AIA      Copyright  © 2017