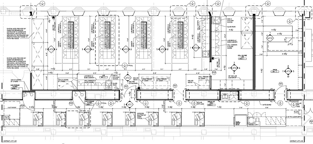
Project designer, project architect, and project manager involving the renovation of existing laboratory space in Mellon Institute, with a new 2,500sf, 7-hood, chemistry research laboratory. The project captured larger usable areas through the creation of research suites allowing the utilization of corridor for research use while meeting code requirements for exiting. This gained approximately 30% more space for the researcher to use for student workstations, flexible meeting/teaching space, and to help identify the suite architecturally.

DR. LY CHEMISTRY RESEARCH LAB

PROJECT INFO

Client: Carnegie Mellon University

On behalf of Renaissance 3 Architects, PC

Category: Research Laboratory

Completion Date: 2002

Location: Pittsburgh, PA

Project Size: 2,500 SF

<

This site built by Michael S. Nowak. AIA      Copyright  © 2017