NOWAK ARCHITECTURE

NEWS

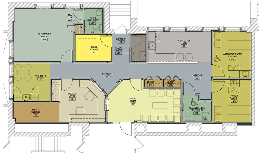
This project was an adaptive reuse of an existing school building converted into a speculative office building.  The project utilized approximately 1/4 of the first floor area in  the renovated building.   Beyond the interior space planning requirements of the medical practice's requirements, the tenant fit-out needed to comply with code requirements for  egress and fire separation from other tenant spaces.

DR. MOLLY TROSTLE FAMILY MEDICINE

PROJECT INFO

Client: Molly Trostle, MD

Category: Healthcare/Adaptive Reuse

Completion Date: 2008 - Unbuilt

Location: Ebensburg, PA

Project Size: 1,600 SF

<

This site built by Michael S. Nowak. AIA      Copyright  © 2017